网站首页
关于kaiyun
产品世界
新闻资讯
工程案例
售后服务
全国网点
kaiyun官方网站
合格证真伪查询
资质荣誉
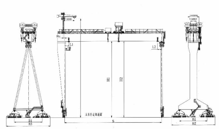
MU型造船门式起重机
架桥机
安全生产许可证
建筑业企业资质证书
职业健康安全管理体系认…
环境管理体系认证证书
质量管理体系认证证书
特种设备制造许可证
计量合格确认证书
荣誉证书
总共 10 条记录 每页 12 条 共 1 页 当前第 1 页
首页
上一页
1
下一页
尾页
安博手机版app
|
九游
|
九游中国有限公司官网
|
米兰体育·米兰官方网站
|
米兰在线注册
|
乐鱼·体育(中国)官方网站
|
乐鱼·体育
|
华体会体育官方网站
|
安博买球_安博买球(中国)
|